Overview
- Updated On:
- December 8, 2025
Description
Price: $610,000 + GST
Property SOLD on 2019-06-18 (Y/M/D)
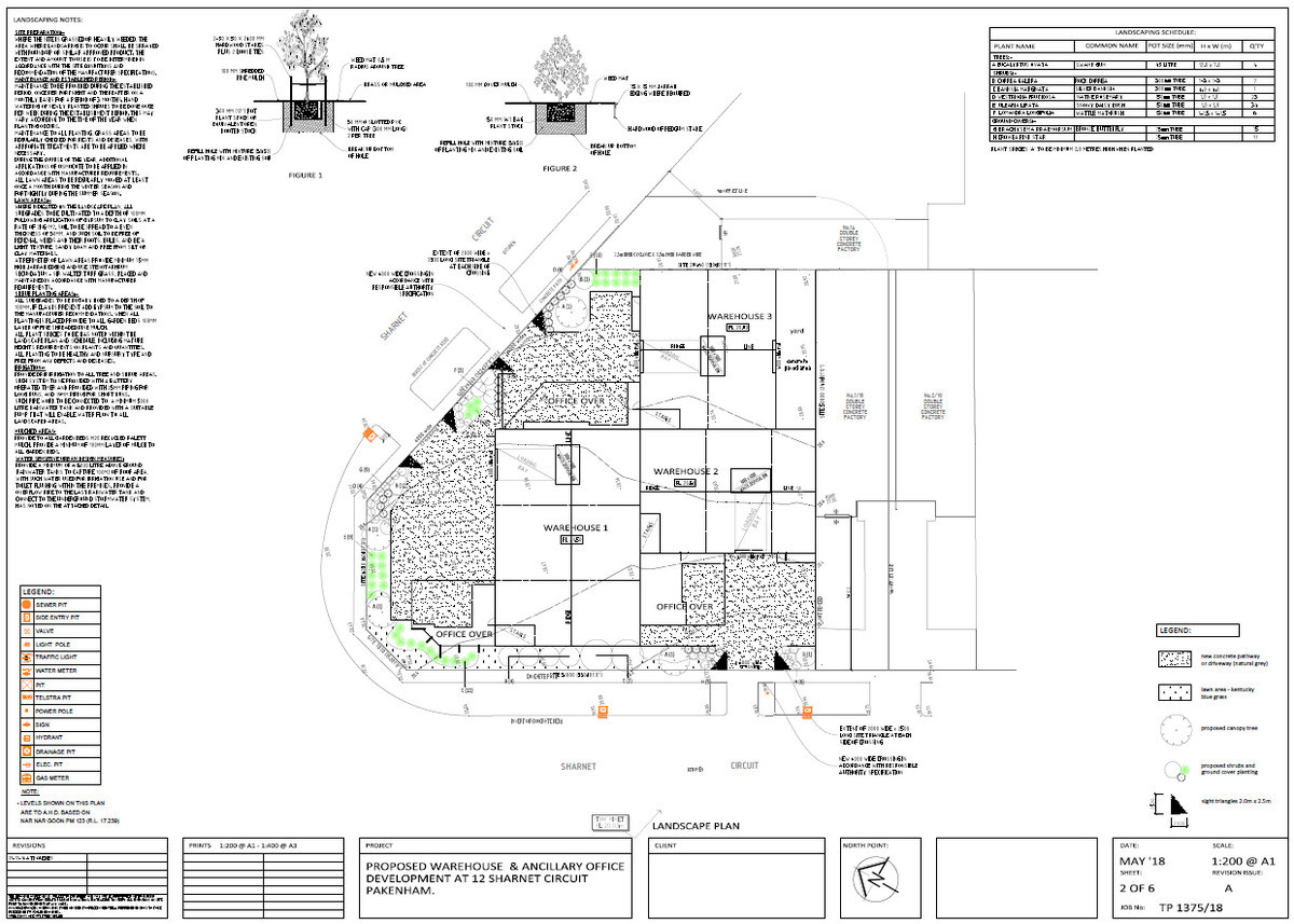
DEVELOPMENT OPPORTUNITY
GiGi Industrial & Commercial are pleased to offer this rare opportunity, for sale by Negotiations.
This key site is in Pakenham’s Industrial precinct and it is surrounded by all the major Roads and Freeways
Minutes from Koo Wee Rup Road, Pakenham Bypass and City Centre.
Situated within Melbourne’s premium south-eastern corridor.
This land is a rare find and with the inclusions of Plans & Permits, the hard work is done. Act now before it is too late.
Details:
– Land Area: 2403m2
– Corner Site
– Plans & Permits for 3 units ranging from 360m2 to 500m2
Available immediately to occupy or for development.
Contact Ben Ameti on 0422 056 652 OR Doukas Gigis on 0466 339 668
Agent Contact Details:
Name: Ben Ameti
Phone:
Mobile:
Email: ben@gigiindustrial.com.au










